Fjordudsigten er klar til indflytning 

Plan og priser

Oplev luksus tæt ved naturens skønhed og fjordens rolige vand. Med priser fra kun 6.750 kr. for en 3-rums lejlighed, kan din drøm om det perfekte hjem ved fjorden blive til virkelighed. Drøm stort, bo naturskønt – dine drømmeboligplaner starter her.

2-rums lejlighed

Størrelse: 84 m(89 m2 inkl. udvendig trappe).
Husleje: 7.770 kr, indskud: 23.500 kr. 

Leder du efter en simpel, moderne og nybygget lejligheden, så er den her sagen. Lejligheden består af et værelse med indbyggede skabe, et lækkert køkken/alrum og et moderne badeværelse. Her har du naturen i din baghave, men skal ikke tænke på vedligeholdelse, græsslågning og ukrudt. Lejligheden kommer med en terrasse eller altan. Alt i alt den perfekte lejlighed til dig ønsker et ukompliceret liv med tid til de vigtigste ting i livet.

Lejligheder med indgang i stueplan har terrasse, mens dem på 1. sal har altan:

Stueplan: 1A / 1C / 2B / 2D / 4D / 5A
1.sal: 1B / 2A / 2C / 5B / 5D

3-rums lejlighed

Størrelse: 84 m2 (89 m2 inkl. udvendig trappe).
Husleje: 7.700 kr, indskud 23.500 kr.

Denne lejlighed består af to gode værelse, et nyt køkken/alrum, badeværelse og et praktisk bryggers. Lejligheden egner sig godt til den lille familie eller til parret der ønsker sig et ekstra gæsteværelse eller kontor. Til lejligheden hører enten en terrasse eller altan med direkte udsigt til den skønne natur og de smukke omgivelser.

Lejligheder med indgang i stueplan har en terrasse, mens dem på 1. sal har en altan:

Stueplan: 4B / 5C
1.sal: 1D / 4A / 4C

2-rums lejlighed

Størrelse: 78 m2 (85 m2 inkl. udvendig trappe).
Husleje: 7.478 kr, indskud 22.500 kr.

Denne bolig har to fine værelser, et køkken og stue sammen, der er perfekt til familieaftener, et nyere badeværelse og et handy bryggers. Det er det bedste af både komfort og stil. Plus, der er en dejlig terrasse eller altan.

Lejligheder med indgang i stueplan har terrasse, mens dem på 1. sal har altan:

Stueplan: 3A / 3C / 14A / 14C / 18A / 18C
1.sal: 3B / 3D / 14B / 14D / 18B / 18D

3-rums lejlighed

Størrelse: 109 m2.
Husleje: 8.562 kr, indskud: 26.000 kr.

Denne to-etagers lejlighed har to hyggelige værelser, et køkken og stue, der er perfekte til familiehygge, et moderne badeværelse og en rummelig entré. Derudover er der en terrasse, der er ideel til at slappe af og nyde livet udenfor.

Lejlighederne har indgang i stueplan: 6A / 7B / 8A / 9B / 10A / 12A / 16 A

3-rums lejlighed
m. enestående udsigt

Størrelse: 109 m2.
Husleje: 9.645 kr, indskud: 29.000 kr.

Denne to-etagers lejlighed har to hyggelige værelser, et køkken og stue, der er perfekte til familiehygge, et moderne badeværelse og en rummelig entré. Derudover er der en terrasse, der er ideel til at slappe af og nyde livet udenfor.

Lejlighederne har indgang i stueplan: 30A / 34A

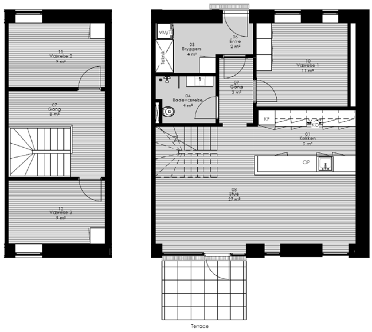
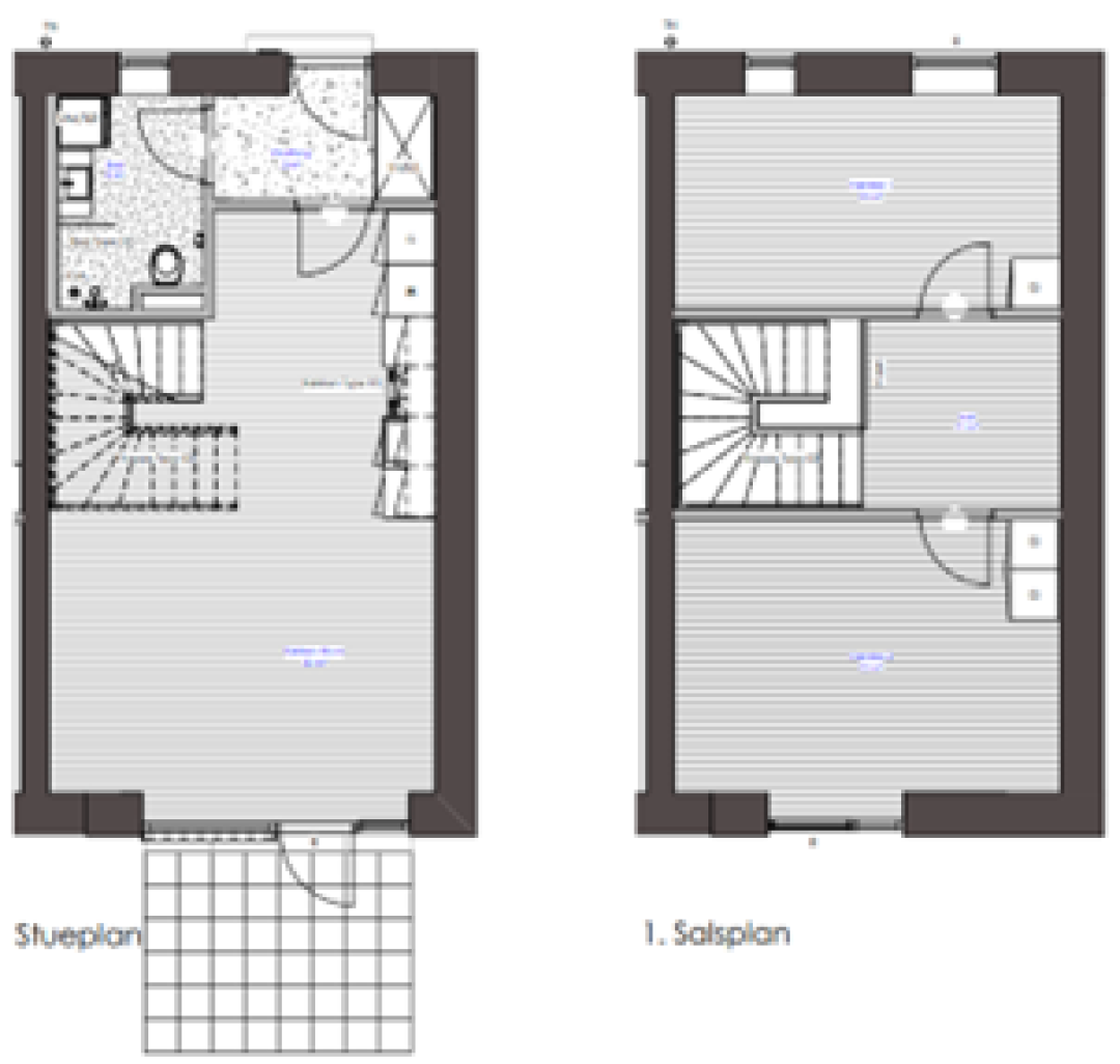
4-rums lejlighed 

Størrelse: 115 m2.
Husleje: 8.910 kr, indskud: 27.000 kr.

Denne lejlighed på to etager tilbyder tre pæne værelser, et køkken og stue sammen til daglig brug, et moderne badeværelse, og et handy bryggers. Plus, der er en terrasse, som er super til at nyde tiden udenfor.

Lejlighederne har indgang i stueplan: 6C / 8C

3-rums lejlighed

Størrelse: 114 m2 (115 m2 inkl. udvendig trappe).
Husleje: 8.855 kr, indskud: 27.000 kr.

Denne lejlighed, der strækker sig over to etager, har to store værelser, et køkken med stue til familietid, et moderne badeværelse, og en rummelig entré. Der er også en terrasse, der er super til at slappe af og nyde det udenfor.

Lejligheder med indgang i stueplan har en terrasse, mens dem på 1. sal har en altan:

Stueplan: 7A / 9A / 10B / 16B
1.sal: 6B / 6D / 8B / 8D / 12B

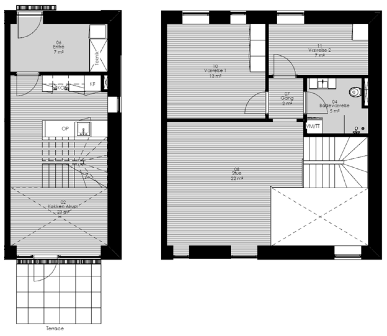
3-rums lejlighed

Størrelse: 80 m2.
Husleje: 7.421 kr, indskud: 22.500 kr. 

Denne lejlighed fordelt på to etager tilbyder et køkken og stue sammen, et enkelt badeværelse, to velindrettet værelser og en terrasse. Det er et godt indrettet hjem, hvor der er både plads og hygge.

Lejligheden har indgang i stueplan: 12C

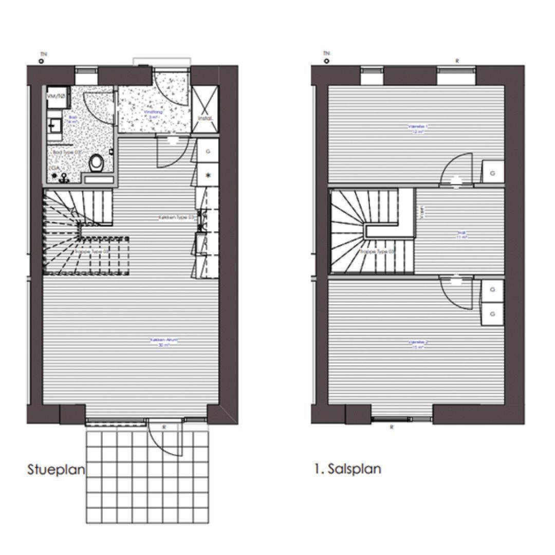
3-rums lejlighed

Størrelse: 100 m2.
Husleje: 7.968 kr, indskud: 24.000 kr.

Denne unikke lejlighed i to plan byder på to rummelige værelser, et moderne køkken/alrum, der indbyder til hyggelige stunder, et stilrent badeværelse og en skøn terrasse med plads til afslapning og udeliv. Her kombineres komfort og funktionalitet i en bolig, der bare venter på at blive dit nye hjem.

Lejlighederne har indgang i stueplan: 11A / 17A / 19A

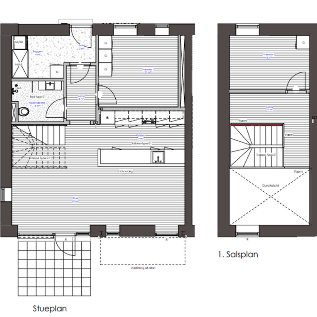
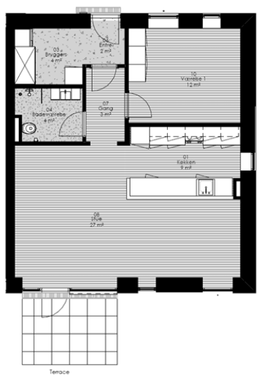
4-rums lejlighed

Størrelse: 105 m2 (114 m2 inkl. udvendig trappe).
Husleje 8.912 kr, indskud 27.000 kr.

Med sine tre indbydende værelser, et integreret køkken/alrum ideelt til familiemiddage, et moderne badeværelse og et praktisk bryggers, tilbyder denne bolig den optimale kombination af komfort og æstetik. Komplet med en charmerende terrasse.

Lejligheder med indgang i stueplan har en terrasse, mens dem på 1. sal har en altan:

Stueplan: 11C / 17C / 19C / 22A / 24A
1.sal: 11B / 17B / 19B / 22B / 24B

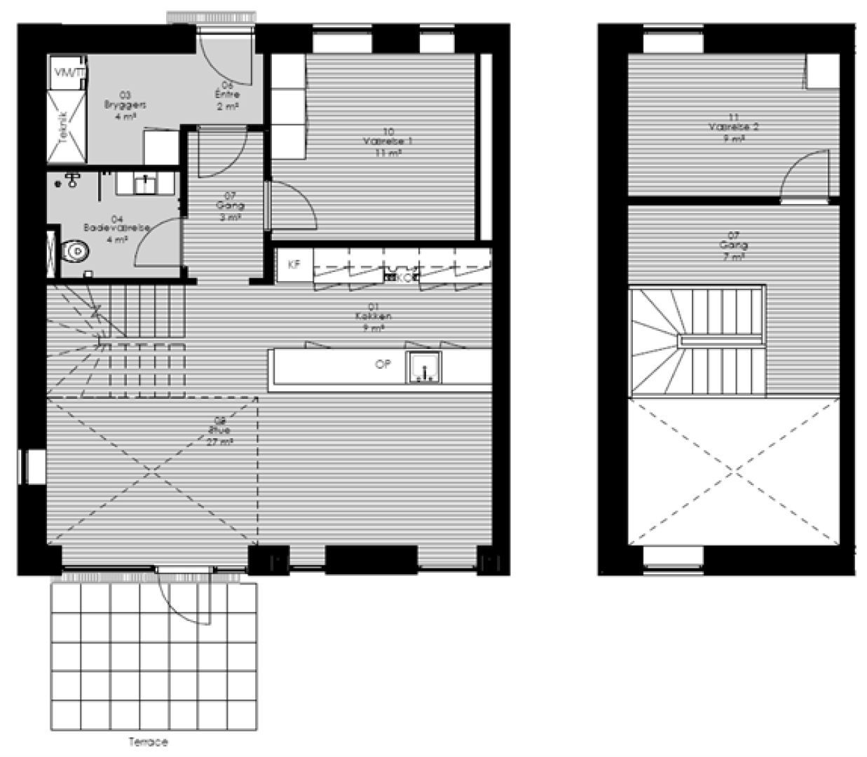
4-rums lejlighed

Størrelse: 106 m2 (114 m2 inkl. udvendig trappe).
Husleje: 8.912 kr, indskud: 27.000 kr.

Denne lejlighed præsenterer tre hyggelige værelser, et sammenhængende køkken/alrum perfekt til hyggelige familieaftener, et tidssvarende badeværelse og et funktionelt bryggers. Boligen kombinerer skønt design med hverdagens komfort, og er toppet med en indbydende terrasse.

Lejligheder med indgang i stueplan har en terrasse, mens dem på 1. sal har en altan:

Stueplan: 13B / 15B / 20A
1.sal: 13A / 15A / 20B

4-rums lejlighed
m. enestående udsigt

Størrelse: 106 m2 (114 m2 inkl. udvendig trappe).
Husleje: 9.645 kr, indskud: 29.000 kr.

Denne lejlighed præsenterer tre hyggelige værelser, et sammenhængende køkken/alrum perfekt til hyggelige familieaftener, et tidssvarende badeværelse og et funktionelt bryggers. Boligen kombinerer skønt design med hverdagens komfort, og er toppet med en indbydende terrasse.

Lejligheder med indgang i stueplan har en terrasse, mens dem på 1. sal har en altan:

Stueplan: 26A / 28A / 32A
1.sal: 26B / 28B / 32B

3-rums lejlighed

Størrelse: 109 m2.
Husleje: 9.200 kr, indskud: 46.000 kr.

Fordelt over to plan, præsenterer denne lejlighed to velindrettede værelser, et åbent køkken/alrum perfekt til dagligdagens øjeblikke, et moderne badeværelse og et praktisk bryggers. Som prikken over i'et byder boligen på en terrasse, der indbyder til afslappede stunder i det fri.

Lejlighederne har indgang i stueplan: 30A / 34A

3-rums lejlighed

Størrelse: 115 m2.
Husleje: 9.645 kr, indskud: 29.000 kr.

Spredt over to niveauer, byder denne lejlighed på to rummelige værelser, et samlende køkken/alrum ideelt til familiens samvær, et nutidigt badeværelse og en stor entré. Dertil kommer en terrasse, som er perfekt til afslapning og nydelse udendørs

Lejlighederne har indgang på 1. sal: 30B / 34B

3-rums lejlighed

Størrelse: 80 m2.
Husleje: 7.077 kr, 21.500 kr.

Denne to-plans lejlighed byder på et integreret køkken/alrum, et funktionelt badeværelse, to værelser og en terrasse. En veldesignet bolig, der kombinerer plads og komfort.

Lejlighederne har indgang i stueplan: 30C / 34C

3-rums lejlighed

Størrelse: 100 m2.
Husleje: 7.968 kr, indskud: 24.000 kr. 

Denne lejlighed fordelt på to etager tilbyder et køkken og stue sammen, et enkelt badeværelse, to velindrettet værelser og en terrasse. Det er et godt indrettet hjem, hvor der er både plads og hygge.

Lejligheden har indgang i stueplan: 22C / 24C